한향림도자미술관

HANHYANGLIM CERAMIC MUSEUM

한향림도자미술관
미술관소개 건축시설

건축시설

2020 한국건축문화대상-우수상

한향림도자미술관 항공 이미지
Han Hyang Lim Ceramic Museum
한향림도자미술관은 경사면에 위치해 부지 내 높이차가 20m에 달했는데,
이를 극복하기 위해 장방형의 매스를 어긋나게 쌓아올리는 적층방식을 택했다.

건축 개요

구조철근콘크리트 구조
위치경기 파주시 탄현면 헤이리마을길 82-37
규모지상 3층, 지하 2층
대지면적1,795.10 m²
건축면적661.71 m²
연면적1,651.25 m²

ㅣ 건축의 특징

- 한향림도자미술관은 한향림관장님이 한향림옹기박물관, 한향림현대도자미술관에 이어 헤이리 마을에 설립한 세 번째 미술관입니다.
    한향림도자미술관의 건축은 깔끔하고 세련된 흰색 외관을 갖추고 있으며, 각층이 서로 다른 방향을 바라보고 있는 독특한 디자인을 자랑합니다.

- 한향림도자미술관은 장방형의 매스를 어긋나게 쌓아올리는 적층 방식의 디자인을 채택해 다양한 외부공간과 조망이 만들어질 수 있는 특징이 있습니다.
    각층의 매스가 교차하는 중심부에는 3개 층을 관통하는 홀을 조성해 전시와 관리공간을 분리함과 동시에 중심부와 전시공간이 시각적으로 연결될 수 있도록 되어있습니다.

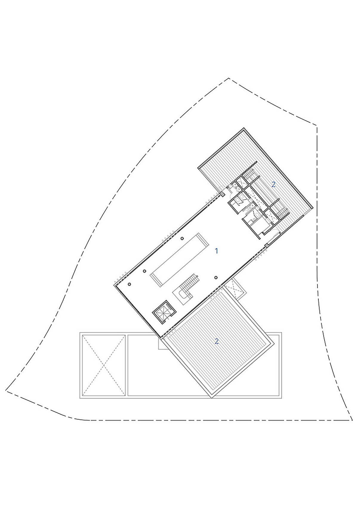
  • 1. 층별안내

    1층 평면도

  • 2. 평면도-1층

    평면도-1층

  • 2. 평면도-2층

    평면도-2층

  • 2. 평면도-3층

    평면도-3층